
::::: 남자들의 취미를 위한 게러지 하우스는 어떤 느낌일까???
남자들은 태생적으로 자기만의 공간을 가지고 싶어한다. 특히나 와이프가 보면 쓸때없는 (?) 취미를 가지고 있는 남자라면 살면서 나만의 공간을 한 번 아니 백 번이라도 꿈꿔보기도 한다. 하지만 항상 비어있는 통장으로 한 숨을 쉬고 있지만 오늘 소개하는 곳의 집 주인은 돈이 좀 많아서 그런지 자신만의 공간을 꾸며놓았다.

::::: 우리가 꿈꾸는 하우스
남자들은 항상 꿈을 꾼다. 누구에게나 꿈꿀 수 있는 포르쉐 카레라 그리고 박스터 여기에 클래식 카로 로버 미니까지 그리고 친구들이 놀러오면 맥주 한 잔할 수 있는 파티 공간과 내가 사랑하는 키덜트들이 좋아하는 베어브릭까지 함께할 수 있는 공간이 과연 존재할까??
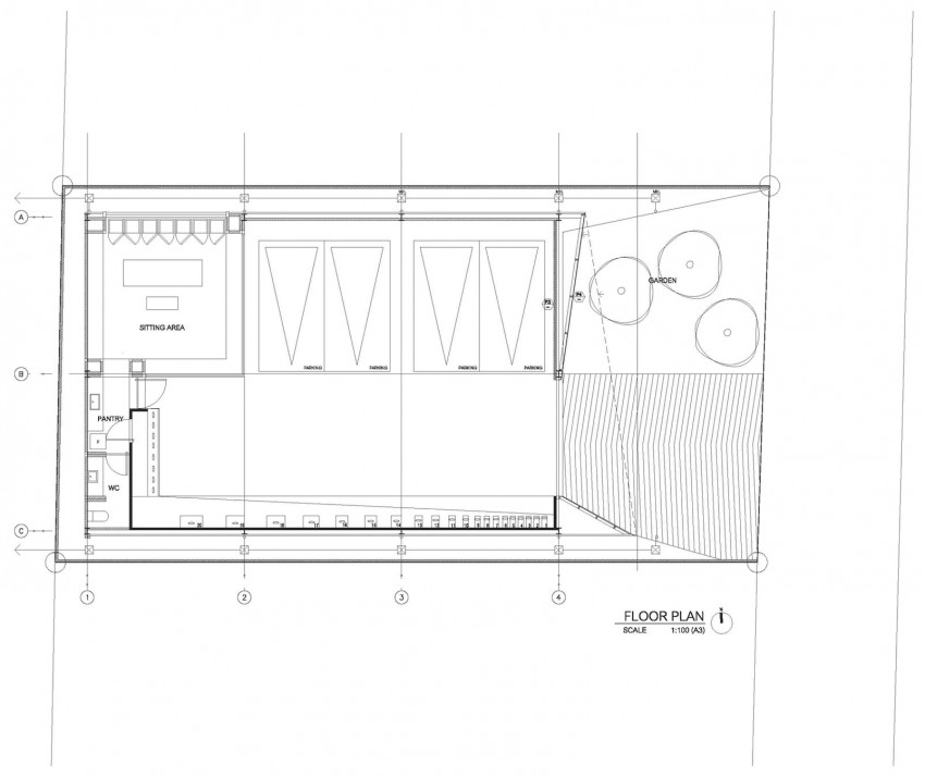
오늘 소개하는 곳은 태국 방콕에 위치하고 있는 Garage of The Bears 라는 곳이다. 단순히 해석하면 곰의 게러지?? 누가보면 차고에 곰을 키우는 듯한 느낌을 가지고 있는 이 곳은 반은 맞고 반은 틀리다. 이 곳은 태국 건축 사무소인 오픈박스에서 설계하고 건축한 공간으로 2013년에 제작된 이 곳은 사실상 거주 공간이 아니라 자동차 차고로 허가를 받은 곳이다. (그래서 더 부러울지도...) 총 면접은 약 70평 정도 되기에 왠만한 거주 공간보다 넓은 이 곳은 살펴보자.


::::: Garage Of The Bears
이 곳을 이렇게 부르는 이유는 다름아닌 베어브릭 매니아가 이 공간을 만들었다는 점이다. 사실 베어브릭이라고 하면 최근 10여년간 어른들 사이로 다양한 크기의 제품을 수집하는 열풍이 불고 있는 장난감으로 2001년 일본 메티콤 토이에서 제작된 성인들의 수집 목적으로 만든 장난감이다. 디자인에 민감한 젊은 층을 타겟으로 하고 있으며 다양한 색상과 개성넘치는 컬러로 21세기 컬렉션 토이의 시작이라고 불리울 정도로 굉장히 많은 수집가들이 있으며 국내에서도 많은 연예인들이 수집하는 것으로 유명하다.

::::: 자동차 vs 베어브릭
언듯 보이는 포르쉐 2대에 로버 미니를 마주보고 있는 공간은 바로 베어브릭이다. 정확하게 총 몇 개의 베어브릭인지 가격으로 환산하면 얼마인지 모르지만 인터뷰 내용을 보면 베어브릭 수집 비용이 두 대의 포르쉐 보다 비싸다는 농담 아닌 진담은 포르쉐를 전시하고 베어브릭을 놓은 것이 아닌 베어브릭을 전시하고 포르쉐를 둘데가 없어서 이 곳에 두고 있는 듯한 착각을 일으키기도 한다.


::::: 아이언맨도 부러워할 듯한 공간
이 공간에 전시된 베어브릭을 살펴보면 영화 아이언맨이 떠오른다. 한 줄로 서 있는 아이언맨 슈트를 바라보는 공간 뒤로 영화에 토니 스타크가 애장하는 자동차가 있듯이 이 공간은 총 70평이라는 공간에 가득찬 베어브릭과 포르쉐는 아이언맨도 부러워할 수 밖에 없는 공간을 만들고 있다. 단순히 이 공간은 차고와 베어브릭 전시 공간 뿐만 아니라 맥주 파티까지도 할 수 있는 공간도 숨겨져 있다.

::::: 친구들과 맥주 혹은 와인 파티 어때?
실내에는 앉아서 전시된 베어브릭과 포르쉐 & 로버미니를 살펴보며 맥주 한 잔할 수 있는 공간까지도 마련되어 있다. 윗 부분에는 수집하는 와인을 일렬로 전시까지 하고 있어 나만에 공간을 보다 완벽하게 만들어 놓은 것이 특징이며 70평이라는 꽤 넓은 공간을 최대한 잘 활용하고 있는 게러지 디자인을 보여주고 있다.

또한 작은 룸 뒤로는 화장실까지도 굉장히 신경 쓴 모습을 보여주고 있는데 이 곳에서도 베어브릭을 만나볼 수 있을 정도로 이 공간만큼은 베어브릭을 위한 포르쉐를 위한 로버 미니를 위한 이 집에 오너를 위한 공간으로 잘 탄생한 것을 볼 수가 있다.


::::: 오늘도 로또를 사야할까?
사실 돈이 아주 많다고 해도 이런 공간을 만드는 것은 쉽지 않다. 실제 내부 공간이 70평이라고 하지만 야외 공간까지 적용된 면적만 2배 정도가 되는 넓은 공간이 될 수 밖에 없으며 차량만 하더라도 약 4~5억정도에 비용을 여기에 한정판 베어브릭까지 더해진다면 글쎄... 로또가 되도 이런 건물을 지을 수는 있을까?


국내산 100% 편백나무 추출 피톤치드 디퓨져 100ml : 케미컬 사이트
친구 개업식 / 집들이 선물, 인테리어 아이템
smartstore.naver.com
국내산 100% 피톤치드 차량용 디퓨져 7ml : 케미컬 사이트
자동차 방향제, 신차/새차 출고 선물
smartstore.naver.com
'오토모빌 정보(Automobile Info)' 카테고리의 다른 글
| 2020년 추석 명절 고속도로 통행료 및 차량 점검 (0) | 2020.09.24 |
|---|---|
| 람보르기니 아벤타도르를 손목에 감을까? 어벤져 (0) | 2020.09.22 |
| 마세라티와 함께할 수 있는 홀거 슈베르트 캘리포니아 하우스 (0) | 2020.08.18 |
| 우리가 잊고 있던 수동 변속기 (적용 모델, 벨로스터N,아반떼,스타렉스,포터II) (0) | 2020.04.28 |
| 자동차 거치형 내비게이션 아틀란 맵 업데이트 (0) | 2020.04.14 |